- ブレインマンションのホーム
- ブレインマンションについて
- 商品ラインナップ
- スタンダードスタイル
"S"は居室部分の形状を表すSquare【四角い】を意味しています。
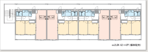
ゆとりある居住空間と高い利便性を入居者に提供できる、活用効率の高いベーシックなプランです。
使い勝手の良い居室レイアウトやゆとりのあるベランダスペースは、入居者の日々の暮らしを快適なものにします。
また、シンプルなプランだからこそ計画の自由度が高く、さまざまな形状や条件に合わせながら、土地を最大限に活かすことができます。
幅広い市場環境に対応するための、シングル向けのプランや、余裕の広さを持った3LDKなど多くのプランを設定。さらにプランごとに、ガスとオール電化の2つの仕様が設定されています。これらのプランから、地域の賃貸住宅ニーズに適した計画をご提案いたします。
それぞれのプランは、想定される入居者像の生活スタイルや志向を検証。「住み心地・使い勝手」の良いプランニングで入居者満足度も高く、安定経営を実現します。
戸数や階段位置の設定の自由度が高いので、敷地形状や各種規制などにも柔軟に対応して、最大限に土地を活かすプランニングを可能にします。
また同じ住戸プランでも、手すりなどのデザインバリエーションにより、個性を出すことができます。
どのデザインも高級感と落ち着きを感じさせ、周辺の景観や街並みにマッチしながらも確かな存在感を実現。魅力的な外観で入居者を惹きつけながら、オーナーの大切な資産の価値をよりいっそう高めてくれます。




