- ブレインマンションのホーム
- ブレインマンションについて
- 商品ラインナップ
- ブレインストア
周辺の市場環境や土地の立地・面積・形状などの条件を満たし、テナント出店が見込める土地をお持ちの方にご提案したい店舗併用賃貸マンション。
それが『ブレイン・ストア』です。
鉄筋コンクリートラーメン構造とすることで、高耐震性・耐久性や住居部分の高い居住性能はもちろん、1階をテナントとするために必要とされる広い空間を実現しました。
一般の賃貸住宅のみを建築する場合に比べ、収益性が高まります。また、店舗や事務所に長期間賃貸するテナント部分と、一般の入居者が対象になる住戸部分が同じ建物に共存。複数タイプの賃貸対象を持つことで、長期にわたり安定的な経営を可能にします。
高い居住性能とテナントのための広い空間を両立する鉄筋コンクリートラーメン構造を採用。1階のテナント部分は、分割して賃貸することも可能ですので、地域のニーズにあったテナント募集をすることができ、物件の付加価値を高めることができます。
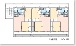
住戸部分のプランは、単身者からファミリー向けまで対応する6プランをご用意。1Kとファミリー向けプランを組み合わせることも可能で、市場ニーズに合わせたきめ細かいご提案が可能です。
このような方にお薦めします。
ブレイン・ストアの計画では、入居するテナントが確保できる立地であることが重要です。
- 人通りや交通量が多い。
- 住宅地や商業地にあるか隣接している。
- 来店者への駐車場なども確保できるだけの敷地面積がある
などの条件を満たしている土地をお持ちの方にこそご検討いただきたい土地活用の新しいスタイルです




